Under Contract

121 Nicholas Rd, Hocking

UNDER CONTRACT

3 2 2 406 m2

Discover a home that truly offers more than meets the eye.

PLEASE NOTE: If you enter the actual property address into your GPS, it will direct you to the wrong location due to Google Maps still updating. To find the correct spot for the home open, please enter “123 Nicholas Road, Hocking” (next door) into your GPS instead.

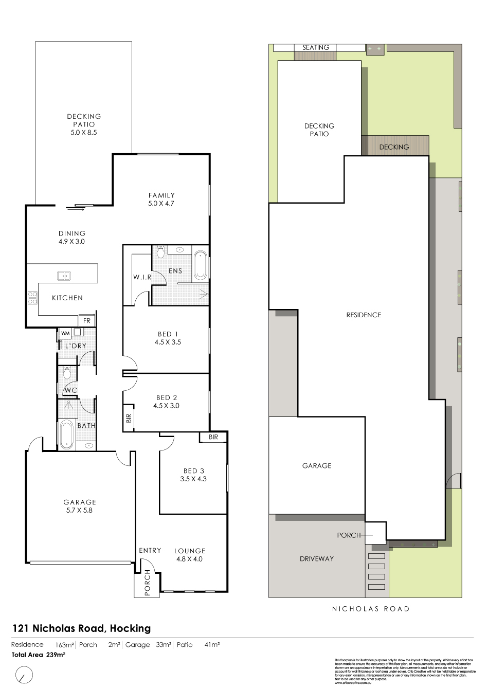
Set in the highly sought after suburb of Hocking, this beautifully presented 2018 built residence delivers an impressive 173sqm of internal living, making it significantly larger than most homes in its category.

Thoughtfully designed and exceptionally comfortable, it offers a generous floorplan with multiple living zones, including a spacious lounge, dining area and a dedicated theatre room (easily enclosed to create a 4th bedroom if desired).

Stepping inside, you are immediately welcomed by high ceilings that enhance the sense of openness throughout. At the heart of the home sits the upgraded kitchen, beautifully finished with stone benchtops, quality appliances, microwave recess and extensive storage, all complemented by a breakfast bar perfect for casual meals or entertaining guests.

All three bedrooms are remarkably oversized, flooded with natural light and offering a mix of built-in and walk-in robes. The master suite is a standout, featuring a large walk-in wardrobe and a deluxe ensuite with a spacious walk-in shower, wide enough to accommodate a wheelchair.

Outdoors, the rear gardens provide a peaceful retreat. A huge alfresco area creates the ideal space for year-round entertaining, while the surrounding gardens offer privacy and a lush, relaxing backdrop for family living.

Positioned in an elevated pocket, the home enjoys views of the Perth Hills right at your doorstep, while being just minutes’ walk from the picturesque Amery Park. A short 10 minute stroll brings you to the local shopping plaza with a supermarket, cafés, restaurants and boutique conveniences.

Public transport is only a 4-minute walk away, and families will appreciate the proximity to Hocking Stars Early Learning Centre, St Elizabeth Catholic Primary, Hocking Primary School and Ashdale College, each only a few minutes’ drive.

This is a standout opportunity to secure a spacious, modern home in one of Hocking’s most desirable locations, perfectly suited to growing families, downsizers wanting room to move, or buyers seeking value without compromise.


Internal Features:
* Elevated position with glimpses of the Perth Hills|
* High ceilings throughout
* Beautiful tiled flooring throughout living inc master bedroom
* Two separate living spaces
* Spacious home theatre with plantation shutters – can be enclosed to create a 4th bedroom
* Beautiful upgraded kitchen featuring gas cooking & quality appliances
* Extensive storage, stone benchtops and breakfast bar
* Large master suite with private deluxe ensuite and a large walk-in robe
* Ensuite walk-in shower wide enough for wheelchair access
* Two oversized, naturally bright bedrooms with built in robes
* Fully equipped minor bathroom with bathtub and excellent ventilation
* Split system air conditioning in both the master bedroom and main living area
* Solar panels for energy efficiency
* Huge alfresco with easy care, wood effect, composite decking
* Beautifully landscaped front gardens
* Spacious, low maintenance rear garden perfect for kids and pets
* Double garage with generous driveway parking
* Short walk to Amery Park, bus stops, schools and childcare
* 10-minute stroll to shopping plaza with supermarket, cafés and restaurants
* Built in 2018 with modern fixtures and finishes
* 173sqm of internal living – much larger than typical 3 bedroom homes
* 406sqm block size

 

 

 

3 2 2 406 m2

Details

Address 121 Nicholas Rd, Hocking
Price UNDER CONTRACT
Property Type Residential
Property ID 261
Category House
Land Area 406 m2
Floor Area 173 m2

Tools

Share This Property