Sold

68 Burnett Ave, Leeming

SOLD for $1,100,000

4 2 1 680m2

Stylishly Renovated Family Oasis with Pool, Ready To Move In & Enjoy

 

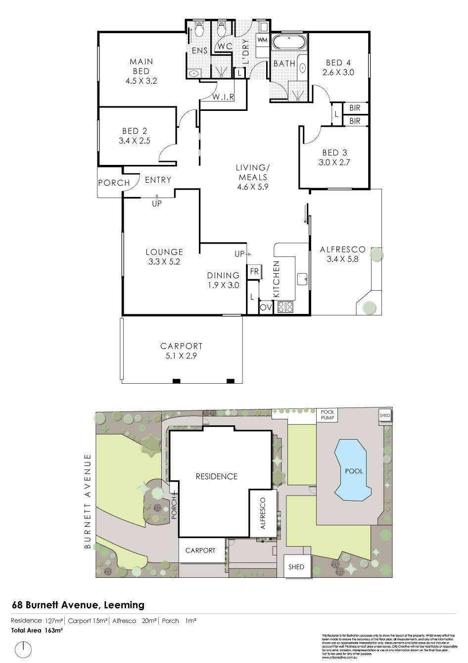
Step into this stylishly renovated 4 bedroom, 2 bathroom home, where modern updates and everyday comfort come together seamlessly. With a brand new kitchen, bathrooms, laundry, fresh paint and upgraded LED lighting throughout, there’s nothing to do but move in and enjoy.

Designed for both space and flexibility, the home offers a welcoming front lounge, a versatile dining area (or home office) and a bright open-plan kitchen, meals, and family zone, perfect for relaxed living. The beautifully updated kitchen features stone benchtops, an electric cooktop, a wall oven and plenty of storage, making it the heart of the home.

The master suite includes a walk-in robe and a sleek new ensuite, while the additional bedrooms (two with built-in robes) are serviced by a fully renovated main bathroom, complete with a freestanding bath for added luxury.

Step outside to a generous backyard with a spacious alfresco, lush gardens, and a sparkling saltwater pool—an ideal setting for entertaining or unwinding.

Set on a generous 680sqm block with a wide 20m frontage, this home is in a prime location close to schools, parks, shops, Murdoch University, Fiona Stanley Hospital and transport links. 

Do not miss this fantastic opportunity to secure a beautifully finished home in a sought after suburb.


Features include
* Wonderfully spacious floorplan
* Generous master bedroom with WIR, newly renovated ensuite and ceiling fan
* L shaped front lounge with formal dining or home office
* Open plan kitchen / family / meals area
* Brand NEW kitchen with stone bench top, soft close doors and drawers
* Appliances include wall oven, new rangehood & cook top
* Single size minor bedrooms each with ceiling fans (two with built in robes)
* Separate spacious laundry, with NEW cabinetry
* Newly renovated family bathroom with floor to ceiling tiles & freestanding bath
* NEW wood look flooring throughout the living area
* Fully ducted evaporative air conditioning
* Roller shutter to all front windows and more
* Sparkling below ground pool
* Single garage with plenty of additional parking space
* Drive through access to rear
* Garden shed
* Fully reticulation gardens from Bore
* Built in 1981
* 680sqm block
* 163sqm living

 

 

 

Details

Address 68 Burnett Ave, Leeming
Price SOLD for $1,100,000
Property Type Residential
Property ID 182
Category House
Land Area 680m2
Floor Area 163m2

Share

Lee Tamblin photo

Lee Tamblin

0466 250 944