Sold

13 Leo Pl, Rockingham

SOLD

3 1 1 641 m2

HOME OPEN CANCELLED

HUGE INTEREST - 11 OFFERS - HOME OPEN CANCELLED

Calling All Designers, Renovators and Handymen!

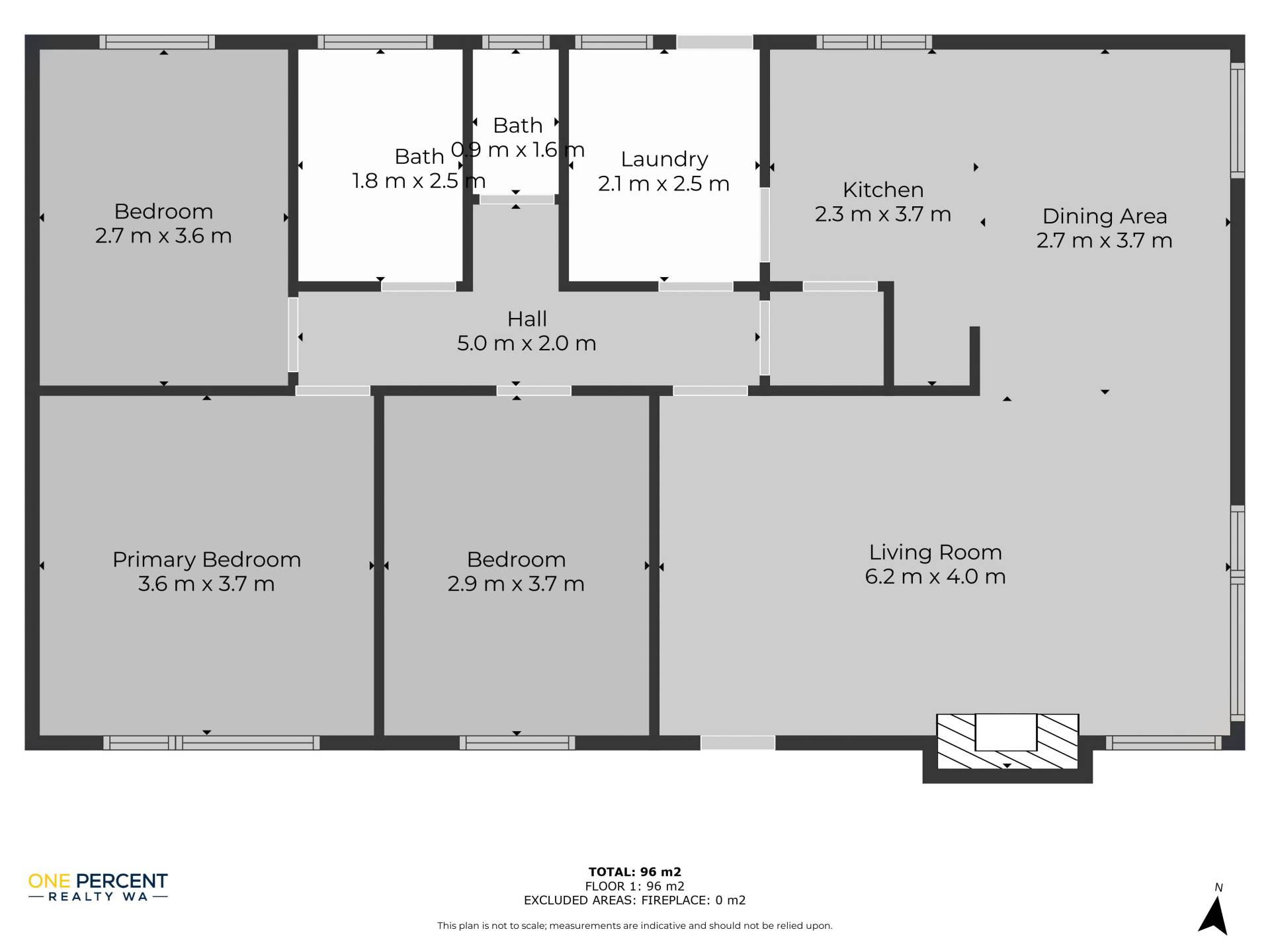
Be quick to secure this original brick and tile 3 x 1 with jarrah flooring (under carpet) in a sought after pocket of Rockingham.

This property is ready for a little TLC, and offers so much potential. You can design and renovate it your way and truly make it your own!

Featuring 3 bedrooms, family bathroom, spacious front living room with a reverse cycle air-conditioner, high ceilings throughout, spacious original kitchen with ample storage, laundry and large windows that which allow an abundance of light to filter through.

Outside features a spacious backyard, with a couple of storage sheds and parking for several cars.

Ideally located within a short distance of shopping facilities, local amenities, schooling, public transport, beautiful parklands and the pristine beaches of Safety Bay.

Please note this property is to be sold on an “AS IS” basis.


Property Features
* 3 good size bedrooms
* Front lounge
* Open plan kitchen/dining area
* Spacious kitchen area with storage
* Separate laundry off kitchen
* Reverse cycle air-conditioner (in the living room)
* High ceilings throughout
* Concrete alfresco area
* Spacious garden
* Storage sheds
* Under main roof carport
* Built in 1970
* 641sqm block


Location Features
* Nearest bus stop (Cygnus St After Hydra Cl) 500m*
* Bungaree Oval 250m*
* Rockingham Centre 1500m*
* Rockingham Medical & Dental Centre 1.8km*
* Rockingham Beach 2.8km
* Shoalwater Beach 4.1km*
* Rockingham Train Station 3.1km
* Perth 48.7km
* Distances are approximate (Based on Google Maps)

Details

Address 13 Leo Pl, Rockingham
Price SOLD
Property Type Residential
Property ID 108
Category House
Land Area 641 m2
Floor Area 121 m2

Share

Lee Tamblin photo

Lee Tamblin

0466 250 944